The McKinley
The McKinley
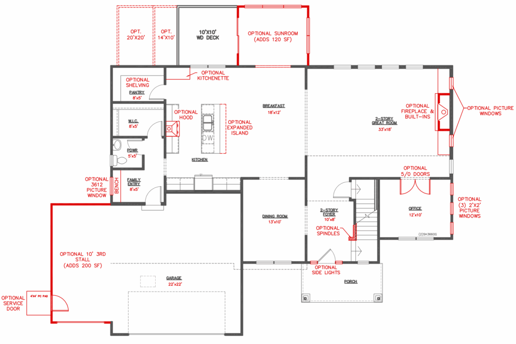
The home that will exceed all expectations, from entertaining, to its stunning architectural design, the Mckinley ranks high in all categories. Step inside and be greeted by an enchanting 2-story foyer with high angled walls and gorgeous entry light. Keep walking and find your spacious fully open two-story Great Room that flows seemly into your kitchen, perfect for entertaining all your guests. Upstairs, you’ll find the owner’s oasis completed with a large owner’s bath and a 7x15ft walk-in closet. To complete the upper level is three more spacious bedrooms and another full bath. For even more room, a completed lower level would provide another bedroom and a full-sized recreational area for all your entertaining needs.
Floorplan Options
All of Bosgraaf’s plans can be “flipped” with the garage on either side. Colors, inside and out, are up to you as well. You can even decide to invest in optional features such as a third garage stall or other enhancements. Even though we offer “pre-designed” home choices, we believe the only place for cookie cutters is in your kitchen drawer!
