The Silverton

3
Beds

2.5
Baths

1715
SQ FT

2
garages

2
Stories
The Silverton
The Silverton
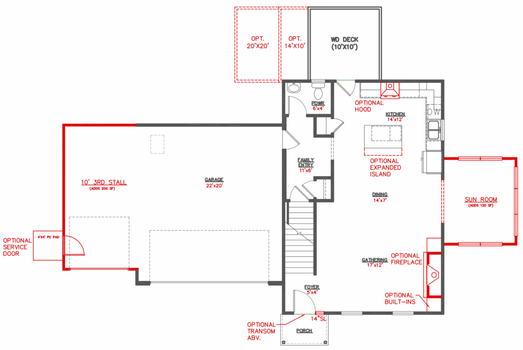
Simple, yet boastful, our Silverton home plan is our three bedroom, two and a half full bath two-story with 1,716 square feet of beautifully designed interior living space. The main floor offers spacious family entrance and open concept main living area that’s perfect for entertaining and every day living. The upper-level features three large bedrooms, two full baths, and laundry room with in-wall connections. Plus, this home comes complete with a landscaping package, full GE stainless steel kitchen appliance package, granite counter tops, and so much more! This home is expected to be complete around Spring of 2021 – just in time for those Michigan summers!
Floorplan Options
All of Bosgraaf’s plans can be “flipped” with the garage on either side. Colors, inside and out, are up to you as well. You can even decide to invest in optional features such as a third garage stall or other enhancements. Even though we offer “pre-designed” home choices, we believe the only place for cookie cutters is in your kitchen drawer!